Sniktitt på leilighetene.
Nå er tiden inne for å gi dere en sniktitt på noen av leilighetene. Selv om ikke alle detaljene er på plass ennå, synes vi det begynner å se veldig bra ut.
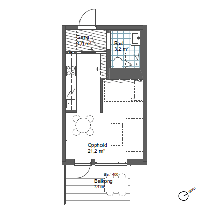
Vi er fornøyde med variasjonen i planløsningene, alt fra smarte 1-roms leiligheter på ca. 30 kvm til innholdsrike 4-roms hjørneleiligheter. Her kan du se tre leiligheter som vi synes har spesielt gode planløsninger. Alle planløsninger og boligvelger vil gjøres tilgjengelig når det nærmer seg salgsstart.
Plantegninger
Lurer du på noe, er det bare å ta kontakt.
Iga Okon
Eiendomsmegler / Partner
Finn Bragnes
Eiendomsmegler / Partner
